实在不懂,看下模型也是极好的!
(第五版)
平面立体及其表面上取点、取线。
曲面立体及其表面上取点、取线。
平面立体及其切割(棱柱)。
平面立体及其切割(棱锥)。
曲面立体及其切割(圆柱和圆筒)。
曲面立体及其切割(圆锥和圆球)。
相贯线。
相贯线综合。
组合体的组合形式(一)。
组合体的组合形式(二)。
画组合体的视图(一)。
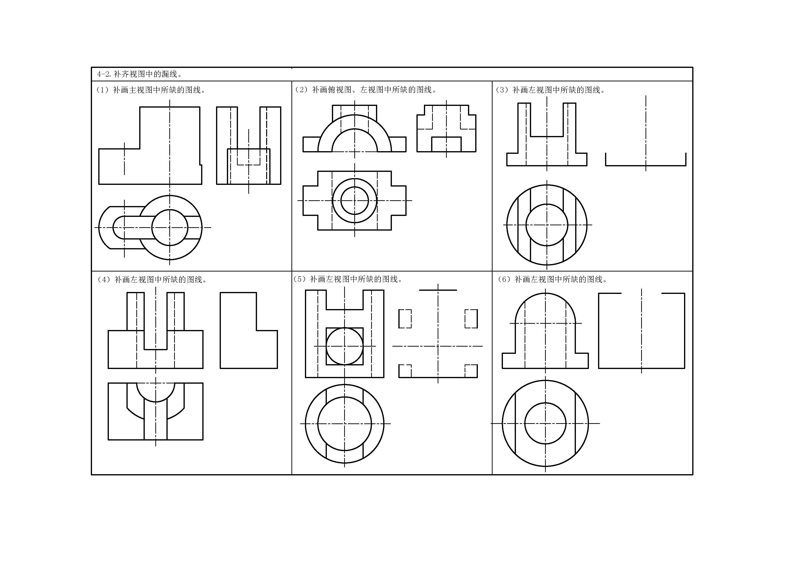
画组合体的视图(二)。
读组合体的视图(一)。
读组合体的视图(二)。
读组合体的视图(三)。